Скачать презентацию
Dafna 27, Leshem, Israel
+7 999 9999999
RU
с изыском
Наслаждайтесь уникальным сочетанием современных интерьеров и исторического наследия
Квартиры
вернуться к выбору этажа
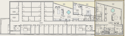
Квартира 5
1 из 6
105 м2
4
Этаж

Площадь

Комнаты
СРОК СДАЧИ
2027
Скачать презентацию
Скачать планировку
Поделиться в мессенджере
1 этаж
  • Мастер-спальня с собственным санузлом
  • Большие панорамные окна
  • Лучший вид на озеро
  • Постирочная
  • Спальня для детей
  • Спальня/комната безопасности/мамад
  • Две ванных комнаты
Стоимость
101 250 000 ₽
4 050 000
1 076 170 $
закат
рассвет
Вид из окон
Высокие потолки и панорамные окна формируют пространства, наполненные светом
Отделка
и мебелировка
Мы позаботились о вашем комфорте и времени, чтобы вы могли потратить его на тех, кто вам дорог и не заниматься отделкой. В клубном доме Agada предусмотрен вариант премиальной отделки в тёплых тонах из лучших материалов.
В отделку входят напольные покрытия из качественного паркета, полная отделка спален. гостиных, а также душевых комнат и ванн, санузлов, установленная кухня и система кондиционирования в каждом помещении.
Мы предоставляем дополнительную услугу по меблировке. Совместно с топовыми израильскими дизайнерами мы подобрали варианты от лучших местных компаний на самый взыскательный вкус.
Подберем для вас
дом мечты
Большое спасибо!
Мы уже скоро позвоним вам